TDO
Activités d'introduction
Test de début d'année (le 8/12)
Les tarifs de Ludibulle
Activité
Site de Ludibulle
Calendrier
Repeindre un appartement
Activité : Repeindre un appartement
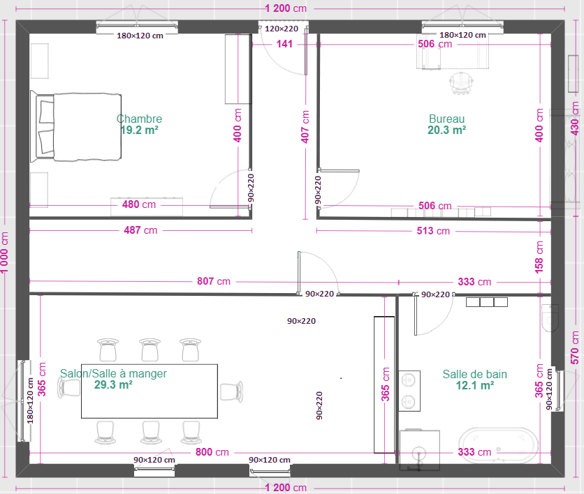
Plan de l'appartement
Vue N°1 de l'appartement
Vue N°2 de l'appartement
Electricité
Petits calculs électriques
Prises multiples
L'univers et la galaxie
De l'infiniment grand à l'infiniment petit - video Dailymotion
Le nucléaire
Recherche internet : Le nucléaire
Les états de la matière
Les états de la matière
Le salaire
Calcul d'un salaire